Rozšírené   vyhľadávanie
Cena
Lokalita
 
Byt
Dom
Pozemok
Stavebné pozemky
Poľnohospodárske pozemky
Nebytové priestory
Filtre

Predám rodinný dom, vilu 127m2, Tomášov, 313.000 €

(v ponuke 1 deň)

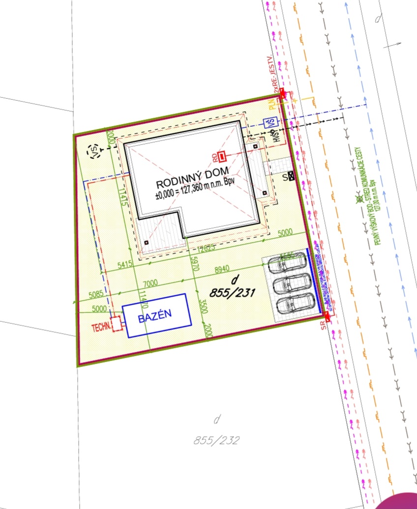
Predaj novostavby 4i rodinného domu v obci Tomášov, Okružná ul. Dom je postavený na pozemku o veľkosti 630 m2, zast. plocha 126,93 m2, úžitková plocha 107,43 m2, terasa 19,50 m2. Dispozícia domu: vstupuje sa cez predsieň do chodby, z kadiaľ sú prístupné všetky obytné miestnosti rodinného domu. Z predsiene je prístup aj do WC a technickej miestnosti. Z chodby je prístupná denná časť, obývacia miestnosť s kuchyňou na jednej strane a na druhej strane je spálňa, druhé WC, kúpeľňa a na konci chodby dve izby. Z obývacej miestnosti je prístup na terasu. Dom je napojený na prípojky elektriny, vody a kanalizácie, steny sú murované z tvárnic HELUZ, zateplené tepelnou izoláciou, strop nad 1.NP bude tvorený stropným systémom PREMACO, strecha plochá so sklonom, vykurovanie objektu je riešené elektrickým podlahovým kúrením, predpríprava na klimatizáciu, krb, vonkajšie žalúzie....... Pozemok bude oplotený, pred domom budú vybudované 3 park. státia. Dom je možné dokončiť do štandardu a je tiež možné zrealizovať stavbu bazéna. Kolaudácia je plánovaná na 12/2025.

  • Lokalita: Tomášov
  • Cena: 313.000 €
  • Výmera: 127m2
  • Pozemok: 630m2
  • Cena za m2: 2.465 €
  • Tomireal
  • Seberiniho 8
  • 82103 Bratislava
  • www.tomirealrk.eu
  • +421905322887
  • Najskôr volajte na tel. číslo uvedené v texte inzerátu.

Podobné ponuky