Rozšírené   vyhľadávanie
Cena
Lokalita
 
Byt
Dom
Pozemok
Stavebné pozemky
Poľnohospodárske pozemky
Nebytové priestory
Filtre

Predám 4 a viac izbový byt 90m2, Banská Bystrica, 219.000 €

(v ponuke 64 dní)

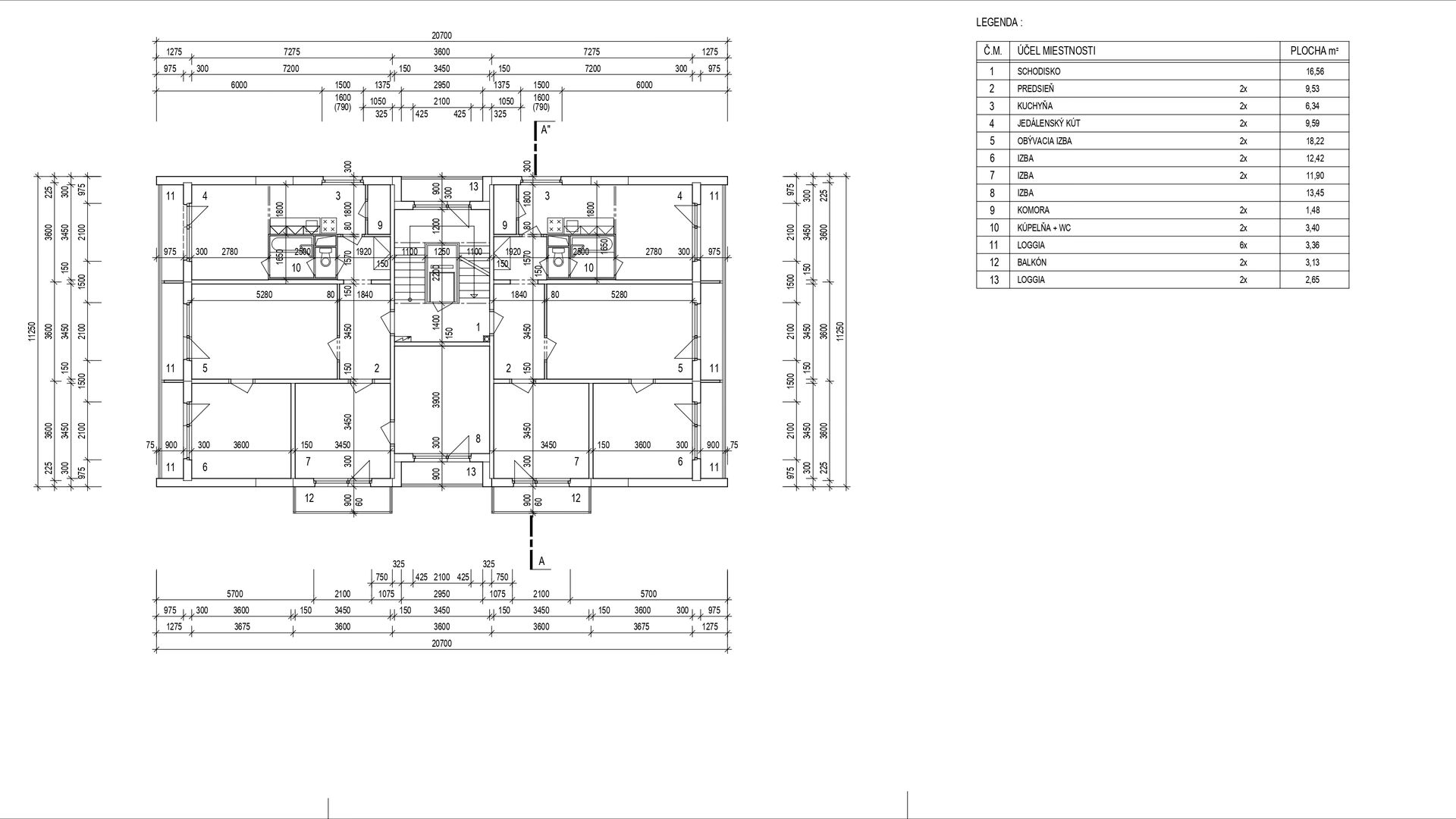
Ponúkam Vám na predaj 4- izbový byt s komorou v byte ( 4x lodžia a 1x balkón) v panelovom zateplenom bytovom dome, postavený v r. 1972 v Banskej Bystrici v časti Stará Sásová na Ružovej ulici č. 5 s nádherným výhľadom na okolie plné zelene (oproti nestojí žiadna vyššia stavba ani bytový dom). Byt sa nachádza na ideálnom stredovom podlaží v bytovom dome, ktorý má nový výťah. Orientácia svetových strán: na západ je kuchyňa časť jedálenská s výstupom na lodžiu, priestranná obývačka s výstupom na lodžiu, spálňa ( prípadne to môže byť ináč využitá izba) s výstupom na lodžiu, na juh sú dve miestnosti jedna s výstupom na lodžiu a druhá s výstupom na balkón. Na sever je jedno okno z kuchyni ( vedľa špajzy ) lebo kuchyňa má 2 okná aj na západ s výstupom na lodžiu. Výmera: byt s príslušenstvom 89,42m2 + pivnica cca 5m2 + lodžie a balkón cca- cca 15 -18 m2. Informácie o byte: Okná sú plastové so žalúziami, podlahy sú v izbách pôvodné drevené parkety, ktoré sú vo veľmi dobrom stave ( sú koberce na nich) v jednej časti vŕzgajú ( treba zrejme upraviť) v kuchyni je plávajúca podlaha, v chodbe a samostatnej komore je linoleum, v kúpeľni a WC je dlažba. Steny aj stropy sú stierky ( hladké), radiátory sú s meračmi tepla a sú liatinové ( ústredné kúrenie) . Kuchynská linka je zánovná vo veľmi dobrom udržiavanom stave. Varí sa na plyne s el. rúrou. Kúpeľňa je murovaná ( staršieho dáta) pôvodne bolo umakartové jadro. Spoločná s WC. Zmenou dispozície si myslím , že by bolo možné dať WC aj samostatne. Obývačka a jedna izba sú prechodné. Dvere bytové interiérové sú pôvodné hladké s presklením. Bytové vchodové dvere sú pôvodné. Byt pôsobí veľmi dobrým dojmom je čistý, dobre udržiavaný napriek tomu, že je v pôvodnom staršom stave. Bytový dom má zriadené vlastné spoločenstvo + spolupráca V:Sprav. Náklady sú momentálne nastavené udržiavacie, takže reálne náklady nevieme aké by mohli byt pri plnohodnotnom užívaní bytu. Predpoklad je plyn mesačne cca 6-7 €, elektrika cca 25€-40€, správca cca 160- 200€ samozrejme záleží na počte osôb a spotrebe. Optika: rôzne možnosti ( v byte je momentálne Telekom). Upratovanie spoločných priestorov zabezpečuje upratovacia spoločnosť. K bytu prislúcha murovaná pivnica s oknom, ktorá je zväčšená o chodbičku a dvere sú latkové. Čo sa týka bytového domu tak je zrekonštruovaný, má novú strechu, je zateplený, nový výťah, spoločné priestory + schodiská sú pekne zrekonštruované- čisté. Nové sú stúpacie rozvody v celom bytom dome ( menené v r. 2023) Teraz čerstvo je odsúhlasené ( už vybratá firma) , ktorá ide robiť novú elektriku v celom bytovom dome ( spoločné priestory). Parkovanie je v okolí ( bezproblémové). Lokalita Stará Sásová je veľmi žiadaná, do centra sa na pešo viete dostať cca 20 minút. V okolí je kompletná občianska vybavenosť. V prípade otázok a dohodnutia obhliadky ma môžete kontaktovať kedykoľvek 24/7. Vieme Vám poradiť aj s financovaním tejto nehnuteľnosti. Máme 25 ročné skúsenosti, spolupracujeme so všetkými bankami, stavebnými sporiteľňami, poisťovňami pri poistení majetku aj úveru. Prevedieme Vás celým procesom od A po Z. Teším sa na Vaše kontaktovanie a na obhliadku s Vami a krásne dni prajem. Evidenčné číslo nehnuteľnosti: 3841

  • Lokalita: Banská Bystrica
  • Cena: 219.000 €
  • Výmera: 90m2
  • Cena za m2: 2.433 €
  • JMB REALITY s.r.o.
  • ulica Nová Zábava 568/5
  • 97655 Ľubietová
  • www.jmb-reality.sk
  • 0903246649
  • Najskôr volajte na tel. číslo uvedené v texte inzerátu.

Podobné ponuky